Dom na sprzedaż Bircza, Brzuska

2 pokoje
47.29 m²
2 727,85 zł/m2
KONT-DS-91

129 000 zł

Dom na sprzedaż
Oferta na wyłączność

Szczegóły oferty

Symbol oferty KONT-DS-91
Powierzchnia 47,29 m²
Powierzchnia działki [m2] 900 m²
Powierzchnia balkonów/tarasów 20,00 m²
Liczba pokoi 2
Rodzaj domu letniskowy
Technologia budowlana drewno
Wymiary działki 26 x 34 m
Okna PCV
Instalacje dobre
Balkon taras
Zagosp. działki zagospodarowana
Ukształtowanie działki płaska
Kształt działki prostokąt
Pokrycie dachu blacha
Stan budynku do zamieszkania
Ogrodzenie działki ogrodzona
Rok budowy 2017
Gaz własna butla
Dojazd asfalt
Otoczenie rzeka
Ogrzewanie elektryczne
Umeblowanie umeblowane
Tarasy taras duży
Prąd jest
Kanalizacja szambo
Katarzyna Huk

Katarzyna Huk

Dyrektor oddziału

Napisz wiadomość 52 Ofert

Opis nieruchomości

Urokliwy domek letniskowy w sercu natury – Brzuska | gm. Bircza, woj. podkarpackie | pow. 47,29 m² | zadaszony taras 20 m² | działka 9 arów |

Nieruchomość o powierzchni 47,29 m² usytuowana jest na działce o kształcie zbliżonym do kwadratu, o powierzchni 9 arów (900 m2), co daje ogromne możliwości aranżacyjne – zarówno pod rekreację, miejsce stałego zamieszkania jak i dalszą rozbudowę.

Domek jest funkcjonalny i przytulny, doskonały na weekendowe wypady, wakacje czy nawet dłuższe pobyty. To idealna propozycja dla osób szukających własnego miejsca na weekendy i wakacje. Domek doskonale sprawdzi się jako miejsce wypoczynku, ale również jako inwestycja pod wynajem krótkoterminowy.

Otoczenie zachwyca zielenią i pięknymi krajobrazami. To miejsce stworzone dla miłośników spacerów, wycieczek rowerowych i relaksu na świeżym powietrzu.
 

Parametry nieruchomości:

- powierzchnia domku: 47,29 m²
- działka: 9 arów (900 m²)
- domek drewniany, parterowy z poddaszem, kryty blachą, okna PCV, drewniane schody
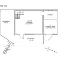
- funkcjonalny i przytulny układ (parter: salon z aneksem kuchennym ok. 19,59 m², łazienka ok. 3,72 m², pomieszczenie gospodarcze ok. 5,92 m²poddasze: sypialnia ok. 18,06 m²)
- domek w pełni wyposażony i umeblowany (w kuchni: zlew, lodówka, kuchenka, piekarnik)
- solidne, drewniane meble ogrodowe
- instalacje wewnętrzne: elektryczna, wodna, kanalizacyjna, ogrzewanie elektryczne 
- do budynku doprowadzona sieć elektroenergetyczna, kanalizacja - szambo betonowe
- przestronny zadaszony taras o powierzchni około 20 m2 z balustradą i bramką
- duży teren dający prywatność i możliwości aranżacji

Najważniejsze atuty nieruchomości:

- dogodny dojazd drogą asfaltową
- w pełni ogrodzona działka z bramą wjazdową
- działka dająca prywatność
- zadbany, urządzony ogród z licznymi nasadzeniami
- mała architektura ogrodowa: drewniana huśtawka, drewutnia, ławeczka z pergolą, przygotowane miejsce na ognisko
- idealne miejsce do wypoczynku lub inwestycji pod wynajem
- działka położona przy szlaku rowerowym Green Velo
- do rzeki San tylko 2,7 km, dopływ Sanu - rzeka Stupnica ok. 52 m, przy czym na działce nie występuje zagrożenie powodzią rzeczną
- dobry dojazd do większych miejscowości

Lokalizacja:

- ok. 9 km do Birczy
- ok. 25 km do Krasiczyna
- ok. 25 km do Dynowa
- ok. 31 km do Arłamowa
- ok. 70 km do Rzeszowa

To doskonała propozycja dla osób marzących o własnym miejscu na ziemi, gdzie można odpocząć, naładować baterie i cieszyć się naturą.

Zadzwoń i umów się na prezentację! Oferta wyłącznie w KONTRAHENT NIERUCHOMOŚCI

Nota prawna: Informacje dotyczące opisu nieruchomości mają charakter wyłącznie informacyjny i mogą podlegać aktualizacji. Oferta dotycząca nieruchomości stanowi zaproszenie do rokowań zgodnie z art. 71 Kodeksu Cywilnego i nie stanowi oferty określonej w art. 66 i następnych KC.

Dyrektor oddziału

Proszę wprowadzić poprawne imię i nazwisko
Proszę wprowadzić poprawny numer telefonu
Proszę wprowadzić poprawny adres e-mail
Proszę zaznaczyć wymagane zgody
Rozwiąż równanie:
25 5
Niepoprawny wynik